Vitbar192 ®   31-May-2024 10:19

Проектирование судовой системы электродвижения


Год выпуска: 2024
Язык: Русский
Автор: Чупина К.В., Ханнанов А.М.
Жанр: Учебное пособие
Издательство: Дальневосточный федеральный университет
Формат: PDF
Качество: Изначально компьютерное (eBook)
Количество страниц: 60
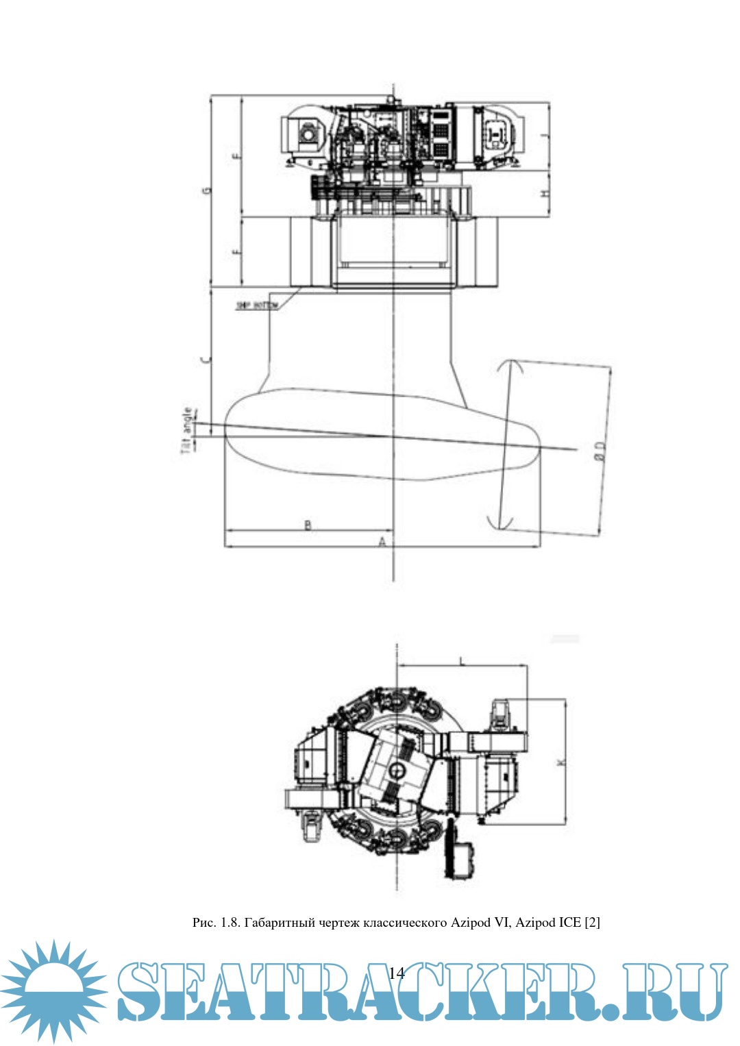
Описание: В учебном пособии рассмотрены разновидности, конструкции и области применения в современном судостроении движительных колонок «Азипод», методики расчета элементов пропульсивной установки, электроэнергетической системы и системы управления электроприводом. Приведены теоретические положения, технические сведения и справочные данные.
Учебное пособие предназначено для студентов направления «Эксплуатация судового электрооборудования и средств автоматики», «Кораблестроение, океанотехника и системотехника объектов морской инфраструктуры», модуль «Электрооборудование и автоматика судов, «Кораблестроение, океанотехника и системотехника объектов морской инфраструктуры», программа «Энергетические комплексы и оборудование морской техники» и других инженерных специальностей очной и заочных форм обучения.
Введение.
Расчёт и выбор пропульсивной установки.
Выбор электропривода.
Разработка принципиальной схемы силовой части электропривода.
Выпрямитель.
Звено постоянного тока.
Инвертор.
Блоки торможения.
Блок возбуждения.
Выбор структуры электроэнергетической системы и силового электрооборудования.
Силовые кабели в схеме главного тока.
Расчет механических характеристик.
Построение рабочих характеристик винта.
Построение желаемой механической характеристики электропривода.
Экономические (частичные) режимы ГЭУ.
Разработка функциональной и структурной схем системы управления гребным электроприводом.
Выбор алгоритма векторного управления.
Синтез контуров регулирования потокосцепления статора, момента и скорости асинхронного ГЭД.
Синтез контуров регулирования потокосцепления статора, момента и скорости синхронного ГЭД с постоянными магнитами (СДПМ).
Защита и сигнализация гребной электрической установки.
Заключение.
Список литературы.

Содержание

Скриншоты

Чупина К.В., Ханнанов А.М. Проектирование судовой системы электродвижения, 2024.pdf

Download [5 KB]

Thank U
Reply
refresh list

Similar releases

Судовые энергетические установки - Железняк А.А. [2020, PDF]
Комплекс проектировочных расчётов на примере проекта балкера - Герман А.П., Клименюк И.В., Молоков…
Технология постройки судов. Часть 1. Принципиальная технология постройки судна - Бурмистров Е.Г.…
Теоретические чертежи морских судов - Москаленко М.А. [2022, PDF]
Элементы и функциональные устройства судовой автоматики - Авдеев Б.А. [2018, PDF]
Элементы энергетической установки судна - Чемодаков А.Л. [2020, PDF]
Судовые вспомогательные механизмы - Железняк А.А., Бордюг А.С. [2020, PDF]
Принципы расчета прочности морских плавучих сооружений. Ч.2. Подводная морская техника - Новиков…
Электрические приводы промысловых судов (Часть 2) - Фесенко В.И. [1974, DjVu]
Архитектурное проектирование морских судов - Кузьмина А.В., Иванова О.А., Родькина А.В. [2023, PDF]
LOAD MORE
  • Reply

The time now is: Today 05:33

All times are GMT + 3 Hours