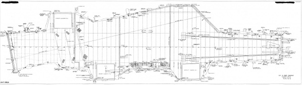
Архивные чертежи авианосца США CV-41 USS Midway по состоянию на 1957 год
Год выпуска: 1957 Язык: мультиязычный Автор: нет Жанр: Другое Формат: PDF Качество: Отсканированные страницы Количество страниц: 18 Описание: USS Midway (CV-41/CVA-41) — американский авианосец, киль которого был заложен в октябре 1943 года, спущен на воду в марте 1945 года и сдан в эксплуатацию ВМС США в сентябре 1945 года. Длина корабля — на момент спуска — 305 м, ширина по летной палубе — 41,5 м, полное водоизмещение — 45 000 тонн. Максимальная скорость авианосца USS Midway составляла до 33 узлов, а его основное вооружение — до 100 бортовых самолетов. USS Midway был первым из трех авианосцев того же типа. Авианосцы класса Midway, предназначенные для замены очень успешных кораблей класса Essex. Новые авианосцы должны были принять - теоретически - до 137 самолетов по сравнению с примерно 100 самолетами на кораблях Essex. Большое внимание также уделялось наилучшей броне для юнитов Мидуэя. В ходе долгой службы корабли этого типа постоянно модернизировали, меняя размеры, приспосабливая к эксплуатации реактивных самолетов или устанавливая все более совершенное БРЭО. Модернизации были настолько значительными, что водоизмещение этого типа авианосцев увеличилось с 45 000 до более чем 65 000 тонн! Авианосец USS Midway (CV-41) после вступления в строй вошел в состав Атлантического флота. Подразделение не принимало участия в Корейской войне (1950-1953 гг.) и в этот период в основном принимало участие в крупных маневрах НАТО в 1952 г. в Северной Атлантике. Тем не менее, корабль принимал участие во Вьетнамской войне (1964/65-1975 гг.), особенно в ее завершающем этапе. USS Midway также участвовал в операции «Буря в пустыне» (1990–1991). В 1997 году корабль был выведен из эксплуатации, а в 2004 году переоборудован в корабль-музей.
Содержание
18 листов архивных чертежей авианосца США CV-41 USS Midway по состоянию на 1957 год
You cannot post new topics in this forum You cannot reply to topics in this forum You cannot edit your posts in this forum You cannot delete your posts in this forum You cannot vote in polls in this forum You cannot attach files in this forum You cannot download files in this forum
Архивные чертежи авианосца США CV-41 USS Midway по состоянию на 1957 год
Язык: мультиязычный
Автор: нет
Жанр: Другое
Формат: PDF
Качество: Отсканированные страницы
Количество страниц: 18
Описание: USS Midway (CV-41/CVA-41) — американский авианосец, киль которого был заложен в октябре 1943 года, спущен на воду в марте 1945 года и сдан в эксплуатацию ВМС США в сентябре 1945 года. Длина корабля — на момент спуска — 305 м, ширина по летной палубе — 41,5 м, полное водоизмещение — 45 000 тонн. Максимальная скорость авианосца USS Midway составляла до 33 узлов, а его основное вооружение — до 100 бортовых самолетов.
USS Midway был первым из трех авианосцев того же типа. Авианосцы класса Midway, предназначенные для замены очень успешных кораблей класса Essex. Новые авианосцы должны были принять - теоретически - до 137 самолетов по сравнению с примерно 100 самолетами на кораблях Essex. Большое внимание также уделялось наилучшей броне для юнитов Мидуэя. В ходе долгой службы корабли этого типа постоянно модернизировали, меняя размеры, приспосабливая к эксплуатации реактивных самолетов или устанавливая все более совершенное БРЭО. Модернизации были настолько значительными, что водоизмещение этого типа авианосцев увеличилось с 45 000 до более чем 65 000 тонн! Авианосец USS Midway (CV-41) после вступления в строй вошел в состав Атлантического флота. Подразделение не принимало участия в Корейской войне (1950-1953 гг.) и в этот период в основном принимало участие в крупных маневрах НАТО в 1952 г. в Северной Атлантике. Тем не менее, корабль принимал участие во Вьетнамской войне (1964/65-1975 гг.), особенно в ее завершающем этапе. USS Midway также участвовал в операции «Буря в пустыне» (1990–1991). В 1997 году корабль был выведен из эксплуатации, а в 2004 году переоборудован в корабль-музей.
Содержание
18 листов архивных чертежей авианосца США CV-41 USS Midway по состоянию на 1957 годСкриншоты
Авианосец CV-41 USS Midway.pdf
Download [6 KB]
Share